
Dach z lukarną: klucz do funkcjonalnego i stylowego poddasza
Odkryj zalety dachu z lukarną! Zwiększ funkcjonalność poddasza, zyskaj naturalne światło i stylowy wygląd. Poznaj rodzaje, koszty i wskazówki montażu. Idealne rozwiązanie dla Twojego domu.

Odkryj zalety dachu z lukarną! Zwiększ funkcjonalność poddasza, zyskaj naturalne światło i stylowy wygląd. Poznaj rodzaje, koszty i wskazówki montażu. Idealne rozwiązanie dla Twojego domu.

Wybierz idealną dachówkę na dach i dowiedz się, jak ją zamontować. Poznaj rodzaje dachówek, ich zalety i wady. Praktyczne porady dla każdego inwestora.

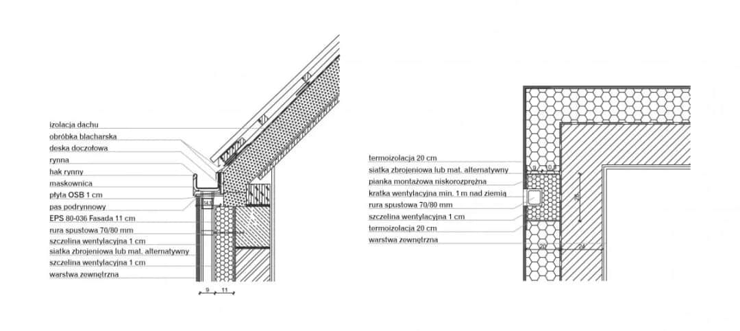
Poznaj zasady prawidłowej obróbki dachu przy ścianie. Dowiedz się, jak wykonać montaż, dobrać materiały i zapobiec przeciekom. Profesjonalne wskazówki dla trwałego dachu.

Poznaj funkcje i zalety bawoleg o oka w dachu. Dowiedz się, jak to oryginalne okno dachowe wpływa na estetykę budynku, oświetlenie i wentylację pomieszczeń. Sprawdź, czy pasuje do Twojego domu!

BZO, czyli benzodiazepiny, to leki o działaniu uspokajającym i przeciwlękowym. Poznaj ich zastosowanie, skutki uboczne oraz informacje o testach wykrywających te substancje w organizmie.

Czarna dachówka ceramiczna łączy elegancję z trwałością. Poznaj zalety tego pokrycia dachowego, rodzaje wykończeń i wpływ na efektywność energetyczną budynku.

Poznaj konstrukcję dachu krokwiowo-jętkowego. Dowiedz się o jego zaletach, zastosowaniach i elementach, takich jak krokwie i jętki. Sprawdź, czy to rozwiązanie sprawdzi się w Twoim domu.

Dowiedz się, jak prawidłowo obliczyć ciężar śniegu na dachu. Poznaj wzory, współczynniki i metody pomiaru, aby zapewnić bezpieczeństwo konstrukcji budynku. Praktyczne wskazówki i normy.

Poznaj innowacyjne techniki budowy dachu bez murłaty. Dowiedz się, jak mocować krokwie do wieńca i jakie są alternatywy dla tradycyjnych rozwiązań. Zmodernizuj swoją więźbę dachową!

Dowiedz się, co ile powinna być szpilka do murłaty dla stabilnej konstrukcji dachu. Poznaj zalecany rozstaw, czynniki wpływające na odstępy i kluczowe zasady mocowania murłaty.

Szukasz najlepszej blachy na komin? Poznaj rodzaje materiałów do obróbki kominowej, ich zalety i wady. Dowiedz się, jak wybrać trwałą i estetyczną blachę dopasowaną do Twojego dachu.

Poznaj innowacyjny system rynien bezokapowych Galeco. Estetyczne, wydajne i łatwe w montażu rozwiązanie dla nowoczesnych dachów. Sprawdź zalety minimalistycznego orynnowania!

Naucz się montować rynnę spustową krok po kroku. Poznaj niezbędne narzędzia, techniki instalacji i unikaj typowych błędów. Zabezpiecz swój dom przed wilgocią już dziś!

Dowiedz się, ile waży śnieg na dachu i jakie stwarza zagrożenia. Poznaj limity obciążenia konstrukcji oraz skuteczne metody usuwania ciężkiego śniegu, by zapewnić bezpieczeństwo budynku.

Wiązary dachowe czy więźba? Porównaj kluczowe różnice, koszty i zastosowania obu rozwiązań. Dowiedz się, która konstrukcja dachu sprawdzi się najlepiej w Twoim projekcie.

Poznaj zalety i wady krycia dachu gontem drewnianym. Dowiedz się, jak prawidłowo montować i konserwować gont, aby cieszyć się pięknym, trwałym dachem przez lata.

Poznaj tajniki ściany szczytowej drewnianej - kluczowego elementu konstrukcji domu. Dowiedz się, jak prawidłowo wykonać, izolować i konserwować tę ważną część budynku.

Poznaj skuteczną technikę łączenia krokwi na zakładkę. Dowiedz się, jakie materiały i narzędzia są potrzebne, jak uniknąć błędów i wykonać trwałe połączenie dachowe. Praktyczne wskazówki dla każdego.

Planując nadbudowę domu z drewnianym stropem? Poznaj koszty, techniki i formalności. Sprawdź, jak zwiększyć przestrzeń, zachowując estetykę i funkcjonalność budynku.

Dowiedz się, czym jest murłata - kluczowa drewniana belka w więźbie dachowej. Poznaj jej funkcje, materiały i znaczenie dla stabilności konstrukcji dachu. Eksperci wyjaśniają!

Dowiedz się, jak prawidłowo wykonać montaż krokwi do murłaty, kluczowy element stabilnego dachu. Poznaj techniki łączenia, narzędzia i najlepsze praktyki dla bezpiecznej konstrukcji.

Dowiedz się, jak prawidłowo wykonać montaż więźby dachowej. Poznaj kluczowe etapy, rodzaje konstrukcji i niezbędne materiały. Stwórz trwały i bezpieczny dach dla swojego domu.

Dowiedz się, jak krok po kroku zbudować dach jednospadowy. Poznaj techniki montażu, izolacji i pokrycia. Praktyczne wskazówki dla początkujących i profesjonalistów.

Poznaj zalety i wady dachu z desek oraz dowiedz się, kiedy warto go zastosować. Sprawdź, jak deskowanie wpływa na trwałość i funkcjonalność konstrukcji dachowej oraz izolację budynku.

Odkryj fascynujące stropy drewniane w różnych stylach i etapach budowy. Galeria zdjęć, inspirujące pomysły i praktyczne porady. Poznaj piękno drewnianych sufitów!