Rynna bezokapowa Galeco to nowoczesny system orynnowania dla budynków bez tradycyjnego okapu. Idealnie pasuje do minimalistycznych projektów. Składa się z prostokątnej rynny (125 mm szerokości) i rury spustowej z PVC-U (70 x 80 mm). Łączy stal, PVC i ocynk, zapewniając trwałość. System wyróżnia się estetyką, wydajnością i innowacyjnymi rozwiązaniami.
Rynna montowana jest tuż pod krawędzią dachu i zakrywana maskownicą, co daje gładką linię. Prostokątny profil zwiększa efektywność odprowadzania wody. System wykorzystuje łącznik doczołowy dylatacyjny dla szczelności i dylatacji. Dostępny w różnych kolorach, łatwy w montażu i konserwacji.
Najważniejsze informacje:- Zaprojektowany dla budynków bez okapu
- Łączy trzy materiały: stal, PVC i ocynk
- Prostokątny profil zwiększa wydajność odprowadzania wody
- Estetyczny wygląd dzięki maskownicy
- Dostępny w różnych kolorach
- Prosty montaż i łatwa konserwacja
- Posiada certyfikat szczelności ITB
Czym jest rynna bezokapowa Galeco?
Rynna bezokapowa Galeco to innowacyjny system odprowadzania wody deszczowej, zaprojektowany specjalnie dla budynków bez tradycyjnego okapu. To nowoczesne orynnowanie, które idealnie komponuje się z minimalistyczną architekturą.System ten znajduje zastosowanie w nowoczesnych projektach architektonicznych, gdzie liczy się czystość linii i estetyka. Rynny ukryte Galeco pozwalają zachować gładką linię dachu, co jest szczególnie cenione w budynkach o współczesnym designie. Dodatkowo, system ten sprawdza się świetnie w przypadku renowacji starszych obiektów, nadając im nowoczesny wygląd.
Główne cechy wyróżniające system rynnowy prostokątny Galeco:
- Ukryty montaż tuż pod krawędzią dachu
- Prostokątny profil zwiększający wydajność odprowadzania wody
- Połączenie trwałości stali, PVC i ocynku
- Innowacyjny łącznik doczołowy dylatacyjny
- Szeroka gama kolorów dopasowanych do nowoczesnej architektury
Budowa i materiały systemu Galeco
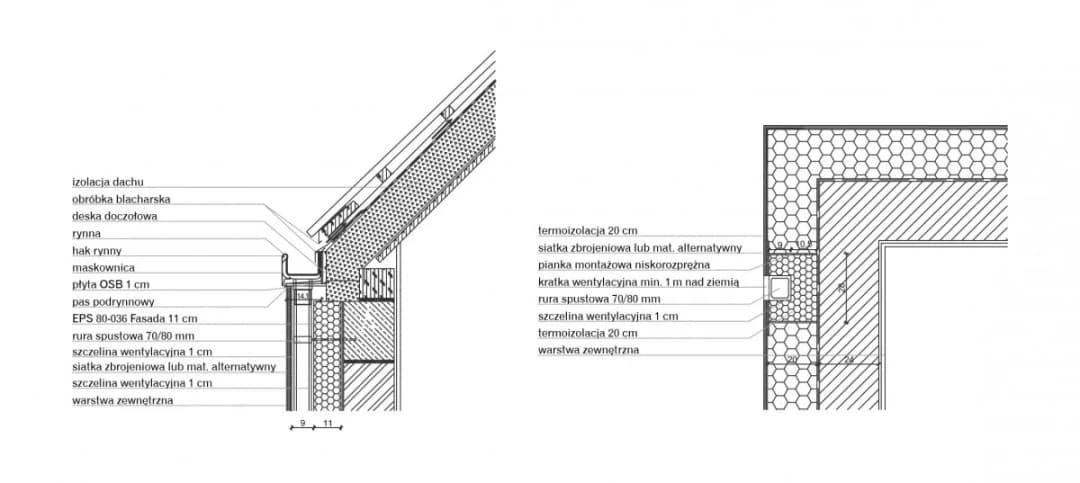
Rynna bezokapowa Galeco składa się z kilku kluczowych elementów. Sercem systemu jest prostokątna rynna o szerokości 125 mm, która efektywnie zbiera wodę z dachu. Współpracuje ona z rurą spustową wykonaną z PVC-U o wymiarach 70 x 80 mm, zapewniając sprawne odprowadzanie wody.
Cechą charakterystyczną tego minimalistycznego systemu rynnowego jest wykorzystanie trzech różnych materiałów: stali, PVC i ocynku. Takie połączenie gwarantuje nie tylko trwałość, ale także odporność na różne warunki atmosferyczne. Stal zapewnia wytrzymałość, PVC lekkość i odporność na korozję, a ocynk dodatkową ochronę przed rdzą.| Materiał | Właściwości |
| Stal | Wysoka wytrzymałość, odporność na obciążenia |
| PVC | Lekkość, odporność na korozję i czynniki chemiczne |
| Ocynk | Dodatkowa ochrona antykorozyjna, zwiększona trwałość |
Czytaj więcej: Podbitka z blachy płaskiej: zalety, rodzaje i montaż - poradnik
Zalety rynny bezokapowej Galeco
Estetyka i design
Rynny dachowe bez okapu Galeco mają ogromny wpływ na wygląd budynku. Dzięki ukrytemu montażowi tuż pod krawędzią dachu, system ten pozwala zachować czystą, niezakłóconą linię budynku. To rozwiązanie szczególnie doceniane przez architektów i właścicieli domów ceniących minimalizm.
Galeco oferuje szeroką gamę kolorów i wykończeń, umożliwiając idealne dopasowanie do elewacji budynku:
- Grafitowy - dla nowoczesnych, kontrastowych fasad
- Czarny - idealny do budynków o wyrazistym charakterze
- Ciemnosrebrny - subtelne rozwiązanie do jasnych elewacji
- Biały - klasyczna opcja pasująca do tradycyjnej architektury
- Antracytowy - elegancki wybór do stonowanych projektów
Wydajność odprowadzania wody
W porównaniu z tradycyjnymi systemami rynnowymi, rynna bezokapowa Galeco wykazuje znacznie wyższą wydajność odprowadzania wody. Prostokątny profil rynny o szerokości 125 mm pozwala na efektywniejsze zbieranie i odprowadzanie wody deszczowej niż standardowe rynny okrągłe o tej samej szerokości.
System wykorzystuje innowacyjny łącznik doczołowy dylatacyjny, który nie tylko zapewnia szczelne połączenie rynien, ale także umożliwia zachowanie odpowiedniej dylatacji między nimi. To rozwiązanie znacząco zwiększa efektywność całego systemu.
Innowacyjne rozwiązania techniczne
Łącznik doczołowy dylatacyjny to kluczowy element rynny bezokapowej Galeco. Zapewnia on nie tylko wodoszczelne połączenie między rynnami, ale także kompensuje naturalne ruchy termiczne materiału, zapobiegając powstawaniu nieszczelności.
System wyróżnia się również specjalnie zaprojektowanymi hakami doczołowymi, które gwarantują stabilne mocowanie rynny do fasady budynku. Dodatkowo, innowacyjne maskownice nie tylko poprawiają estetykę, ale także umożliwiają łatwy dostęp do rynny w celach konserwacyjnych. Bezrynnowy system odprowadzania wody Galeco został też wyposażony w elementy antyrozbryzgowe, minimalizujące ryzyko zacieków na elewacji.
Proces montażu rynny bezokapowej Galeco
Montaż rynny bezokapowej Galeco to proces, który wymaga precyzji, ale jest stosunkowo prosty. Rozpoczyna się od zamocowania specjalnych haków doczołowych do krawędzi dachu. Następnie instaluje się rynnę, dbając o zachowanie odpowiedniego spadku. Kolejnym krokiem jest montaż łączników dylatacyjnych między sekcjami rynny. Po zainstalowaniu rynny, mocuje się rurę spustową i podłącza system do odpływu.
Kluczowe dla prawidłowej instalacji jest dokładne wypoziomowanie rynny i zachowanie odpowiedniego spadku. Warto też zwrócić uwagę na prawidłowe uszczelnienie wszystkich połączeń. Ostatnim etapem jest zamontowanie maskownicy, która nadaje całości estetyczny wygląd.
Ważne porady dla instalatorów:
- Używaj poziomicy do precyzyjnego ustawienia spadku rynny
- Pamiętaj o pozostawieniu miejsca na dylatację termiczną
- Sprawdź szczelność systemu przed zamontowaniem maskownicy
- Zadbaj o prawidłowe odprowadzenie wody z rury spustowej
Konserwacja i trwałość systemu
Regularna konserwacja rynny bezokapowej Galeco jest kluczowa dla utrzymania jej sprawności. Zaleca się czyszczenie rynien przynajmniej dwa razy w roku - wiosną i jesienią. Proces ten obejmuje usuwanie liści, gałęzi i innych zanieczyszczeń, które mogą blokować przepływ wody. Dzięki łatwo demontowalnym maskownicom, dostęp do rynny jest prosty i bezproblemowy.
System Galeco został zaprojektowany z myślą o długotrwałym użytkowaniu. Przy odpowiedniej konserwacji, rynny ukryte Galeco mogą służyć przez wiele lat, zachowując swoją funkcjonalność i estetyczny wygląd. Producent szacuje żywotność systemu na co najmniej 25 lat.
Certyfikaty i gwarancje jakości
Rynna bezokapowa Galeco posiada certyfikat szczelności wydany przez Instytut Techniki Budowlanej. To potwierdzenie wysokiej jakości i niezawodności systemu. Dodatkowo, produkt przeszedł szereg testów na odporność na warunki atmosferyczne i obciążenia mechaniczne.
Producent oferuje długoterminową gwarancję na swój system. Standardowa gwarancja obejmuje 10 lat, co świadczy o pewności producenta co do trwałości i jakości swojego produktu.
Dlaczego warto wybrać rynny bezokapowe Galeco?
Rynna bezokapowa Galeco to idealne rozwiązanie dla osób ceniących nowoczesny design i wysoką funkcjonalność. System ten łączy w sobie estetykę, wydajność i trwałość. Dzięki innowacyjnym rozwiązaniom technicznym, takim jak łącznik doczołowy dylatacyjny, zapewnia skuteczne odprowadzanie wody, jednocześnie zachowując minimalistyczny wygląd budynku.
Ten minimalistyczny system rynnowy sprawdza się doskonale w różnych typach budynków. Znajduje zastosowanie zarówno w nowoczesnych domach jednorodzinnych, jak i w budynkach komercyjnych czy apartamentowcach. Jest też świetnym wyborem przy renowacji starszych obiektów, nadając im współczesny charakter bez konieczności gruntownej przebudowy dachu.
Rynna bezokapowa Galeco: Innowacyjne rozwiązanie dla nowoczesnej architektury
Rynna bezokapowa Galeco to nie tylko system odprowadzania wody, ale prawdziwa rewolucja w dziedzinie nowoczesnego orynnowania. Łącząc estetykę z funkcjonalnością, ten minimalistyczny system rynnowy idealnie wpasowuje się w trendy współczesnej architektury, oferując jednocześnie wysoką wydajność i trwałość.
Unikalna konstrukcja, wykorzystująca prostokątny profil i innowacyjne materiały, zapewnia nie tylko efektywne odprowadzanie wody, ale także elegancki, czysty wygląd fasady budynku. Dzięki łatwemu montażowi i konserwacji, rynny ukryte Galeco są praktycznym wyborem zarówno dla nowych projektów, jak i renowacji istniejących budynków.
Wybierając system Galeco, inwestujesz w rozwiązanie, które nie tylko spełnia swoją podstawową funkcję, ale także podnosi estetyczną wartość budynku. To dowód na to, że nawet tak prozaiczny element jak rynna może stać się kluczowym detalem architektonicznym, łączącym funkcjonalność z nowoczesnym designem.




